
Amrapali Dream Valley offers magnificent Flats (Independent Flats) distribute over 50 Miles (approx) of primary area allotted by GNIDA, the top quality personal project is a exclusive mixture of high-class, comfort and way of life. Designed of natural building idea, the Vaastu certified apartments are huge and highly build. A model of structural quality, the project has over 60% start area developed as world-class scenery.
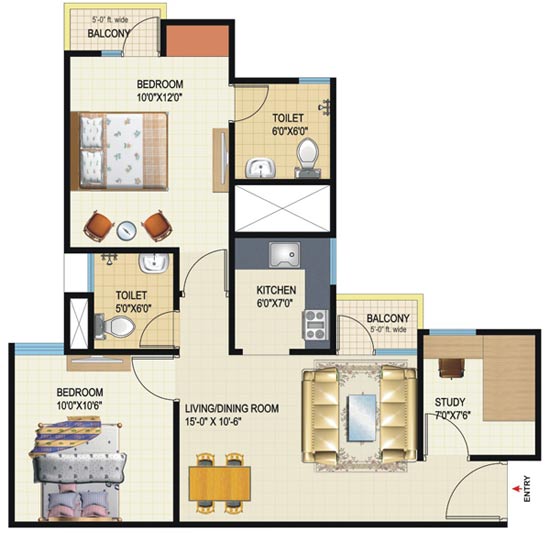
Amrapali Dream Valley project provides houses in options of 1, 2 & 3 BHK apartments in size of 885 sq. ft. to 1715 sq. ft. created by best developers, developers and developers in the property industry.
STRUCTURE :
Earthquake Resistance RCC Structure.
Bedroom:
Floors : Vitrified Tiles/Laminated Wooden Flooring in master bedroom
Ceiling : Designer POP
Living / Dining / Lobby Passage:
Floors : Vertified Tiles / Equivalent
Walls : OBD
Ceiling : Designer POP
Doors :
Entrance Doors : Hardwood Panel doors
Internal Doors : Hardwood frame with skin door
Windows : Powder Coated Aluminum Glazing
ELECTRICAL:
Modular switches
24 Hrs. Power backup provision
Lift Lobby:
Floors : Combination of different coloursof marble / stone in pattern
Elevator : High speed elevator
Toilet:
Walls : Designer Ceramic Tiles
Floor : Combination of anti-skid ceramic tiles / vitrified tiles
Fittings / Fixtures : ISI Fittings, Granite counters, standad chinaware fixtures & fitting for geyser water supply
Water : Hot and Cold water pipeline provision
Balcony:
Floors : Anti-skid ceramic tiles / terrazzo tiles
Walls & Ceiling : Plastic Paint
Kitchen:
Walls : Designer Ceramic Tiles with boarder up to 2 ft. above counter
Floor : Combination of antiskid tiles and vitrified tiles
Counters : Granite working platform
Fittings and Fixtures : CP Fitting, Stainless Steel Sink
Wooden Work : Semi Modular Kitchen



State-of-the-art Gymnasium

Swimming Pool

Billards

Table Tennis Room

green space

Amphitheater

24X7 Security

Yoga and Meditation Area

Kids Play Area

Health Club & Spa

Badminton Court

Basketball court

Jogging Trails

Indoor Games

park

Club House

Lifts

Fire Alarm
Aspire for the finest living at a great value price. With Amrapali Noida Extension projects, it's possible! Designed and developed for you by world class professionals, this is one decision that will give you loads of appreciation.








Amrapali Group is one of India’s prominent real estate developers, known for delivering modern residential and commercial projects across key urban centers, especially in the Delhi-NCR region. Established with a vision to provide affordable luxury housing, the group has developed a wide portfolio of projects, including townships, apartments, villas, shopping complexes, and IT parks.
Spectrum Metro Mall Metro Station Road, Office No. 801, opposite Sector 50, Gardenia Gateway, Sector 75, Noida, Uttar Pradesh 201316
Phone :+91 99589 83333Mobile:+91 99589 83333
info@amrapaliflat.com
Copyright © 2025 Amrapaliflat.com. Powered By EXCEL BIZNET.
to save your favourite homes and more
Enter your email address and we will send you a link to change your password.
WhatsApp us